Linnatuli » Takkamallisto » Hellat » Defro Home Culina S
Defro Home Culina S -hella
Nopeaa lämpöä kokkailun ohessa
Tehokas lämmittäjä
Culina S-hella on tehokas lämmittäjä, joka mahdollistaa monipuolisen ruoanlaiton.
Hella lämmittää tilan tehokkaasti teräksisen liesitason kevyen rakenteensa ansiosta. Hella on varustettu uunilla, jossa korkeammatkin lämpötilat ovat mahdollisia. Erillinen tulipesä pitää uunin puhtaana ja hellan sekä uunin lämpöä on helppo säätää ilmansäätövivuilla.
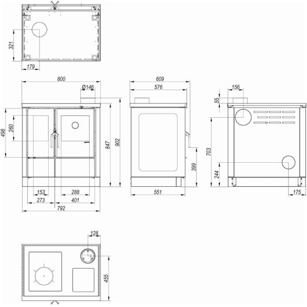
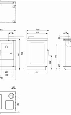
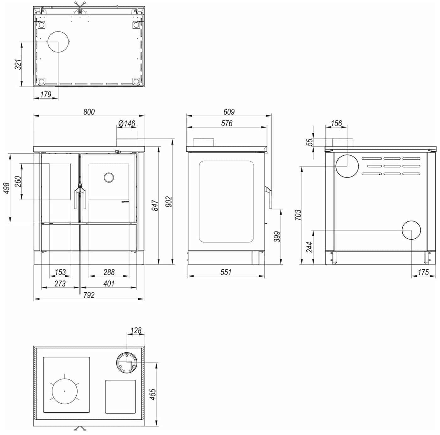
Pelkistetty ja tyylikäs hella sopii niin moderniin kuin perinteiseen keittiöön. Culina S -hella on saatavilla joko ylä- tai pääliliitosmallina. Katso tarkemmat hormilähdön sijainnit mittakuvista.
TEKNISET TIEDOT
Mitat
Leveys 800 mm
Syvyys 609 mm
Korkeus 902 mm
Paino 176 kg
Tulipesän luukku l*k: 153 x 260 mm
Suojaetäisyydet palavaan materiaaliin
Taakse 200 mm
Sivuille 200 mm
Eteen 400 mm
Ylös 1200 mm
Luukun edessä 1000 mm
Tulipesä
Syvyys 370 mm
Leveys 200 mm
Lämmitysala
Jopa 100m²
Hormisuositus min.
1/2 tiiltä tai 150 mm
Hormilähdön koko 146 mm.
Muuta
Hyötysuhde 76,6 %
Puun pituus 33 cm
Tehoalue 4-12 kW
Nimellisteho 9,7 kW
LADATTAVAT TIEDOSTOT
Lisää teknisiä piirustuksia saatavilla pyynnöstä.
Ota yhteyttä
Kiinnostuitko? Ota meihin yhteyttä tai jätä ohessa oleva lisätietopyyntö.
Voit myös etsiä lähimmän myyntipisteen, näyttelyn tai jälleenmyyjän alla olevan haun avulla.
LINNATULI OY
+35820 7413 123
[email protected]
Tehtaan osoite: Yrjönalhontie 13, 21420 Lieto
Huomioithan, että Liedossa ei ole myyntipistettä.


